Additional details

$ 1,900
0.98 Acres Lot
$ 1,900
0.98 Acres Lot
Key Details
Property Type Commercial
Listing Status Active
Purchase Type For Rent
MLS Listing ID 3989604
Year Built 1985
Annual Tax Amount $28,615
Tax Year 2021
Lot Size 0.980 Acres
Property Description
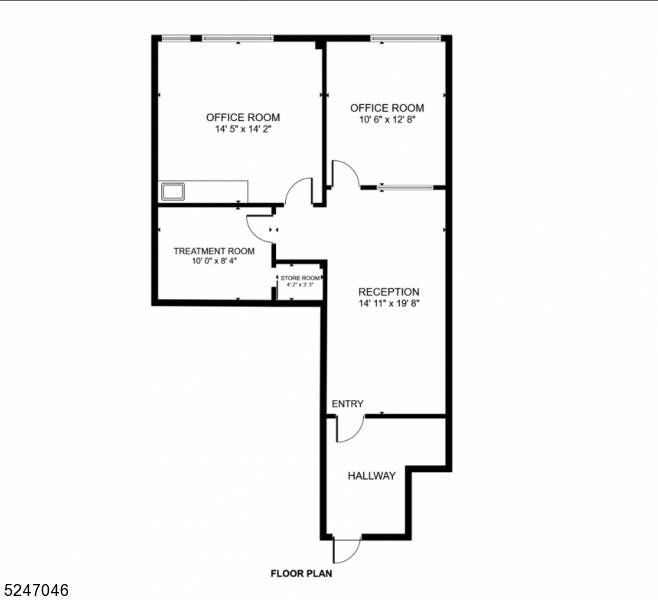
Turnkey Medical/Professional Office Suites " 1,000 SQFT Each " Mountainside, NJSet your practice up for success in a prime medical/professional building conveniently located just off Route 22 at 1132 Spruce Drive, Mountainside, NJ. Situated on the 2nd floor with elevator access, these two available 1,000 sqft office suites are surrounded by an established network of healthcare providers, including chiropractors, a dentist, a gastroenterologist, and other medical professionals making it an ideal location for cross-referrals and patient convenience.Each suite offers:Spacious, light-filled rooms with windows overlooking lush greenery and mature trees, creating a calm, private environment for patients and staff.Conference room with sink in both offices perfect for consultations, procedures, or team meetings.Quiet, well-maintained building with professional ambiance.Turnkey setup ready for immediate occupancy.Perfect for medical, therapy, wellness, or professional office use, these suites combine accessibility, visibility, and a serene setting your clients will appreciate.Highlights:Size: Approx. 1,000 SQFT per suiteLocation: Minutes from Route 22, major highways, and surrounding townsElevator access to 2nd floorAbundant parkingEstablished medical tenant mixBring your practice and start seeing patients right away in one of Mountainside's most convenient and peaceful office settings.
Location
State NJ
County Union
Zoning comm
Interior
Heating None
Cooling Central Air
Equipment Fire Alarm, Furniture, Handicapped Access, Kitchen Area, Restrooms - Public, Sign - Building, Smoke Detector, Sprinkler System
Heat Source None
Exterior
Utilities Available All Underground
Building
Sewer Public Sewer
Water Public Water

Information deemed reliable but not guaranteed. Copyright © 2025 Garden State Multiple Listing Service, L.L.C. All rights reserved.
Listed by SILVER AND OAK REALTY

Get More Information
Quick Search







